La cabane habitée
Conception
Low-Tech
Privé – Danzey (54)
2024
Habitat léger
Architecte
15 000 € TTC – 32m²
Esquisse

Le projet s’intègre au sein d’une grange existante située dans une forêt du Saintois avec une belle topographie. Ce futur habitat léger et low-tech répond à l’envie de vivre de manière plus sobre, en lien avec la nature. Il doit pouvoir recevoir de deux à quatre personnes. Déconnecté des réseaux (et de la 3G), cet habitat interroge la manière de concevoir de manière durable. Comment est pensée une salle de bain sans être raccordée à l’eau courante ou à électricité ? Comment cuisiner en minimisant les énergies ? Avec l’épuisement des ressources, à quoi pourrait ressembler notre habitat (heureux) dans 20 ans ?
Cette cabane a été conçue de manière économe : financièrement, énergétiquement et spatialement. Son emprise au sol est de seulement 30m2 ! Elle a également été pensée pour pouvoir être facilement autoconstruite avec les matériaux disponibles localement qui demandent peu d’énergie : bois, terre, paille.
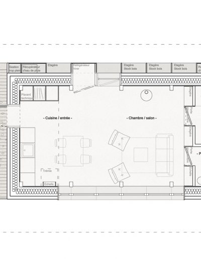
Le bâti est pensé en lien avec les éléments extérieurs. Les panneaux solaires sur la toiture permettent de profiter de la chaleur offerte par le soleil. Un appoint en panneaux photovoltaïques est disposé en contrebas de la pente, là où les arbres ne masquent pas la lumière. La toiture est connectée par des descentes d’eau de pluie à un système de récupérateur d’eau de pluie relié à la douche pour bénéficier de la pression naturelle de la gravité. Plusieurs trop-plein sont connectés pour canaliser les pluies orageuses et permettre ainsi de stocker l’eau en sous-face de plancher bas. Les grands débords de toiture permettent de profiter de l’énergie solaire hivernale sans souffrir des surchauffes d’été. Les rangements au nord, accessibles par l’extérieur permettent de créer un « espace tampon » pour isoler cette façade tout en créant un réfrigérateur d’hiver low-tech.
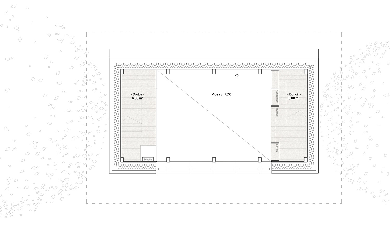
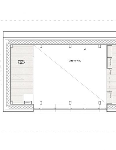
Les espaces ont été divisés de manière à créer des « espaces jours » au RDC et des « espaces nuits » en mezzanine. Les espaces de vie, centraux, traversants et avec une grande hauteur, sont inondés de lumière grâce à la grande baie vitrée. Ils bénéficient du poêle à bois diffusant la chaleur dans tous les espaces. Les espaces de service, comme la cuisine, la salle d’eau ou les locaux techniques sont disposés sur les pignons. Le plafond de ces espaces devient le plancher de l’espace nuit. Ces « blocs » intègrent des portes, des étagères, des rangements, des échelles, des espaces techniques. Et certains éléments sont polyvalents : l’échelle devient l’étagère, la tablette de fenêtre forme un grand banc pour recevoir encore plus d’amis, le garde-corps de la mezzanine s’élargit pour développer un mini-bureau suspendu.
Conception
Low-Tech
Privé – Danzey (54)
2024
Habitat léger
Architecte