Gymnase Jean Lamour
Charpente, Bardage, Mext, Mint
Bois massif et local
Métropole de Nancy – 2023
BE Barthès, Fluid’Concept, Sigma
Gymnase – MOE Public
Collaboratrice chez Studiolada
© Olivier Mathiotte
3 360 000 € TTC – 1370m²
APS, APD, PRO/DCE, ACT, CHANTIER

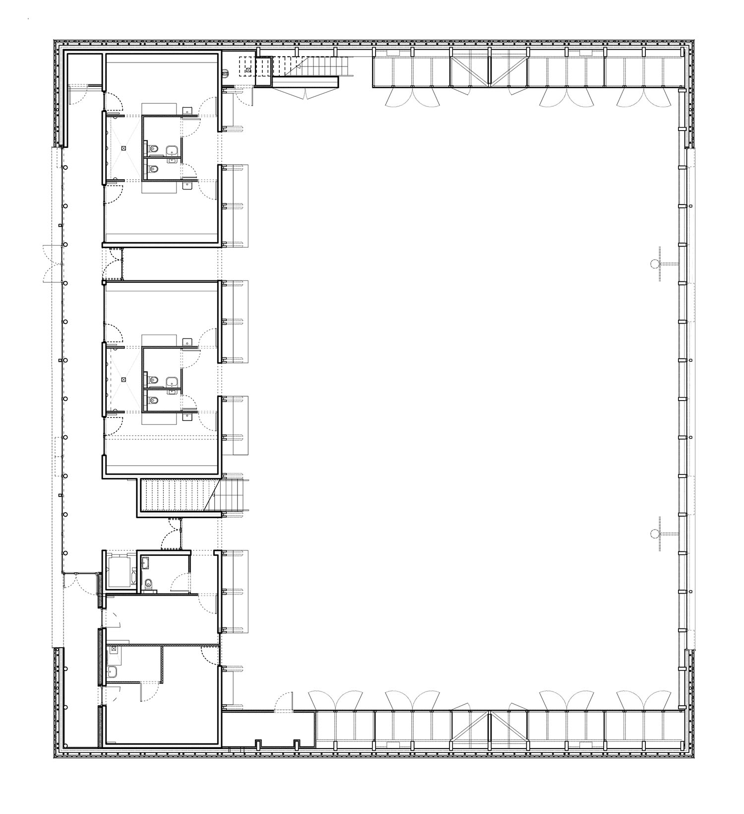
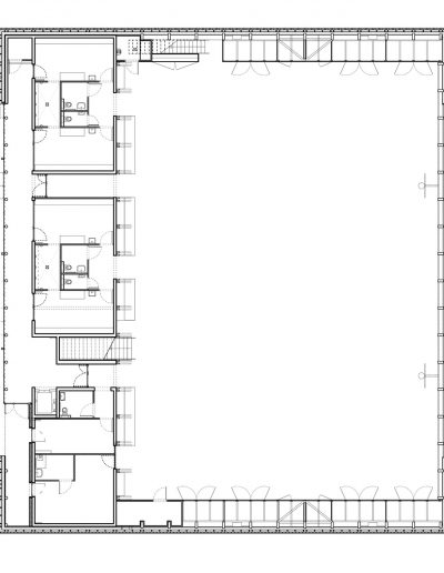
Le bâtiment prend place sur une petite parcelle pentée et exiguë. L’édifice est construit en structure bois et repose sur un socle en béton calé dans la pente. Le gymnase est contenu dans un volume de 32 m x 36 m x 12 m. Chaque façade propose une seule et grande ouverture.
La structure et les espaces sont organisés selon une trame de 2 x 2 x 2 m. Le plan est composé d’une bande de service latérale (vestiaires, sanitaires, bureaux) surplombée de deux petites salles de sport, en mezzanine et en lien visuel avec la grande salle principale. Un édicule en toiture offre deux grandes ouvertures en bandeau qui apportent lumière et ventilation naturelle. Les grands rangements sont disposés directement en pourtour du terrain pour y accéder facilement.
L’édifice démontre les capacités d’utilisation du bois local peu transformé en structure, en aménagement intérieur, en menuiserie extérieure et en bardage. L’enveloppe extérieure s’habille de planches de douglas en rappel du motif de résille de la charpente intérieure.
Pour franchir 24 m de portée, la charpente est composée de 17 portiques formant des poutres treillis moisées, en bois massif. Les menuiseries extérieures sont réalisées en pin lasuré de provenance locale. L’ensemble du mobilier (les gradins, les placards de la grande salle, les bancs des vestiaires) sont réalisés en planches de bois.
Charpente, Bardage, Mext, Mint
Bois massif et local
Métropole de Nancy – 2023
BE Barthès, Fluid’Concept, Sigma
Gymnase – MOE Public
Collaboratrice chez Studiolada
© Olivier Mathiotte